Fern
Строится
Строится

8 Atelier Residence

Пхукет, Чонг Тхале

О жилом комплексе

Локация

Чонг Тхале, Пхукет

Автономный

Тип жилого комплекса

Одно многоквартирное здание

Срок сдачи

1 кв. 2028

8 Atelier Residence — это элитный малоэтажный жилой комплекс в престижном районе Бангтао–Пасак на Пхукете. Проект включает всего 48 резиденций с премиальной отделкой и интерьерами в стиле Индокитай. Уникальное расположение среди пляжей, гольф-полей и международных школ делает его воплощением гармонии изысканного дизайна и курортного образа жизни. Каждая резиденция в 8 Atelier создана с использованием премиальной отделки и продуманных планировок, чтобы подчеркнуть свет, воздух и пространство. Дизайн формирует тёплую и уютную атмосферу, где функциональность гармонично сочетается с комфортом. Философия 8 Atelier основана на вечной элегантности стиля Индокитай, который соединяет в себе европейское колониальное наследие и культурные традиции Юго-Восточной Азии. Просторные планировки, изогнутые архитектурные формы и открытые пространства усиливают естественное освещение и вентиляцию, что особенно важно для тропического климата.

1 здание

7 этажей

48 объектов

Застройщик

GLAM ESTATE GROUP

Связаться с застройщиком

Это моя компания

Заинтересовала недвижимость в "8 Atelier Residence"?

Оставьте заявку и мы вышлем все варианты на продажу.

У вас есть недвижимость в "8 Atelier Residence"?

Зарегистрируйте её бесплатно на FERN и найдите покупателя или арендатора!

Объекты досуга

Общий бассейн

Бар

Общественный сад

Общественный спортзал

Зона ресепшена/лобби

Разрешено с домашними животными

Сауна

Частная парковка

Круглосуточная система безопасности

отельное управление

Зона для загара

Управляющая компания

Коворкинг-пространство

лифт

CCTV (видеонаблюдение)

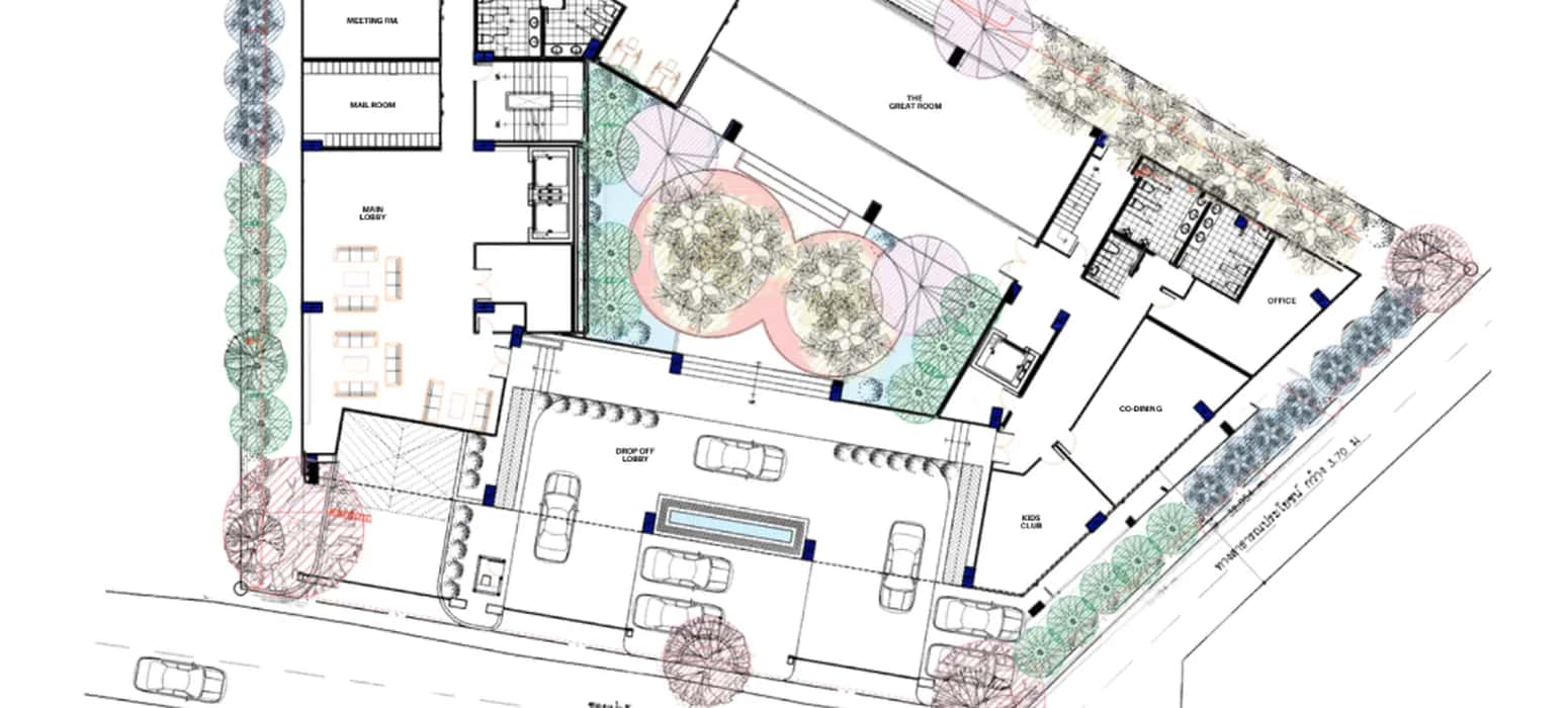
Мастер-план

0.1872 гектара

Территория жилого комплекса

8545.96 m²

Площадь жилых помещений

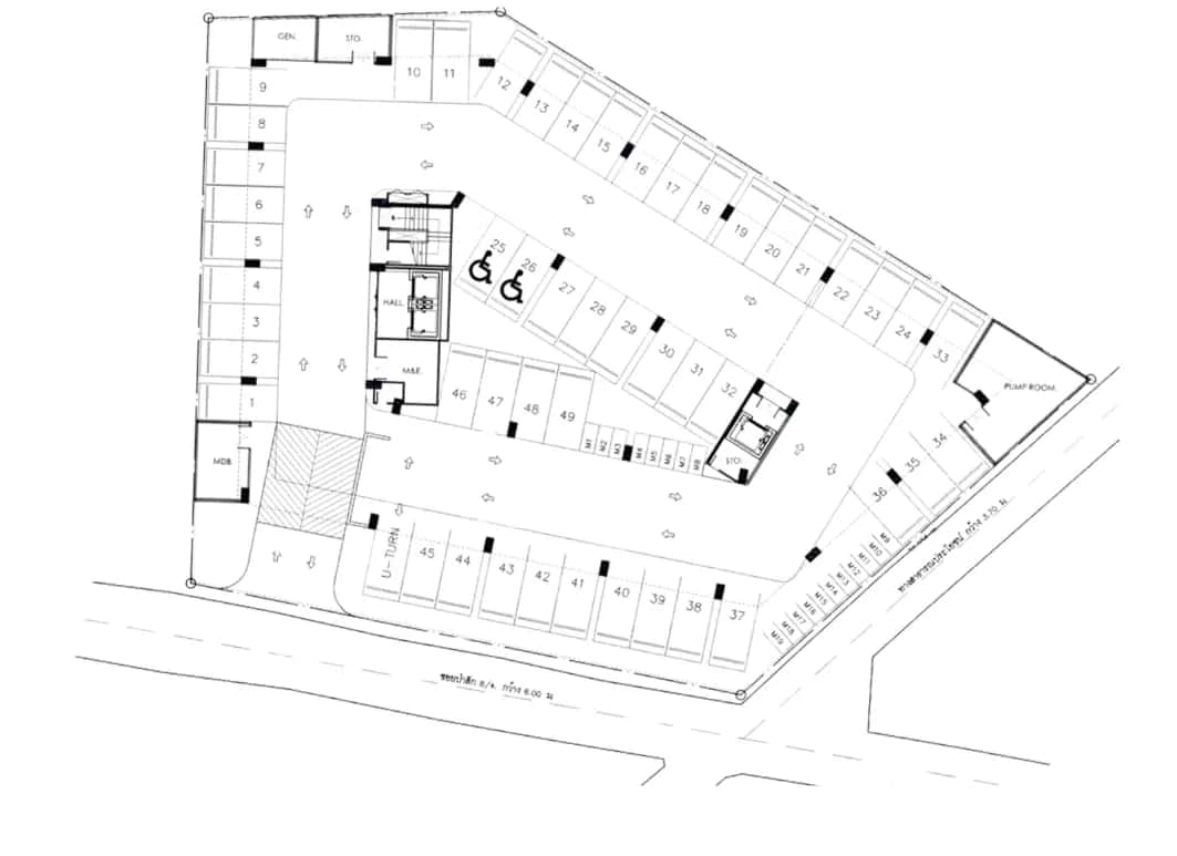
Поэтажный план

Этаж

floor 1

Объекты недвижимости

Тип объектаСтартовая цена, ฿Площадь, m²Цена за m²Фотографии, планировка

Тип объекта

Стартовая цена, ฿

Площадь, m²

Цена за m²

APART 1BR5 602 85751109 860Посмотреть
APART 2BR8 261 8808597 199Посмотреть
APART 3BR11 996 13412298 329Посмотреть
PENTHOUSE 3BR44 071 444276159 680Посмотреть
APART 1BR

5 602 857

51 м²

109 860 ฿ за m²

APART 2BR

8 261 880

85 м²

97 199 ฿ за m²

APART 3BR

11 996 134

122 м²

98 329 ฿ за m²

PENTHOUSE 3BR

44 071 444

276 м²

159 680 ฿ за m²